お客さまのニーズに沿った
車両検修設備
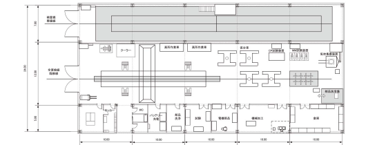
レイアウト設計
車両基地・工場における車両検修設備のレイアウト設計を行います。
設計から導入後の設備メンテナンスまで、総合的な提案を実施します。

製品の特徴
FEATURE
車両基地・工場設備 設計コンサルティング
豊富な経験と高い技術力をベースに、車両基地・工場の車両検修設備新設やリノベーションのコンサルティングなど、車両の品質向上やメンテナンスコスト削減を実現するためのさまざまな設備を提案しています。

設計事例
台車検修設備《レイアウト設計》

車体検修設備《レイアウト設計》

工場内《レイアウト設計》
